Компактное распределительное устройство среднего напряжения с элегазовой изоляцией и герметичным электрическим кольцом
Солнечные фотоэлектрические объединительные коробки 500В-1500В 20А-630А
Трехфазный шкаф распределительного устройства фотоэлектрической сети мощностью 100–2000 кВт
Умная/компактная коробчатая подстанция 24 кВ (20 кВ)Устройство защиты заземления нейтральной точки разъединителя GW13 производства Lugao предназначено для защиты изоляции нейтральной точки трансформатора от грозового перенапряжения, коммутационного перенапряжения и (переходного) напряжения промышленной частоты. Лугао располагает профессиональным производственным оборудованием и богатым опытом экспорта, а имеющиеся запасы могут быть доставлены быстро.
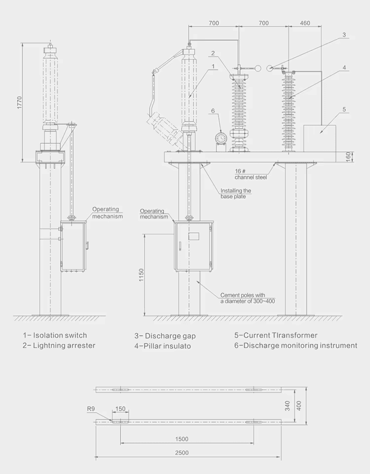
Выключатель-разъединитель Lugao GW13 для защиты от заземления нейтрали в основном используется в цепях нейтрали силовых трансформаторов 110 кВ и 220 кВ. Они защищают изоляцию нейтрали трансформатора от повреждения из-за перенапряжения и позволяют трансформатору переключаться между режимами работы заземленной и незаземленной нейтральной точки. Когда требуется одновременная защита от молнии, промышленной частоты и коммутационного перенапряжения, для защиты можно параллельно подключить разрядник и разрядник. Устройство защиты от перенапряжения в нейтральной точке серии GW13 представляет собой полный комплект, включающий в себя разъединитель, разрядник из оксида цинка, разрядный промежуток и трансформатор тока. Он отличается высокой теплоемкостью и отличной защитой, гибкими конфигурациями и простотой использования. В соответствии с потребностями пользователя можно выбрать конструкцию с чистым зазором или комбинацию разъединителя и разрядного зазора.
Технические характеристики устройства защиты GW13
| предмет |
Единица |
Аргумент |
||
| Модель продукта |
|
Лугао-GW13-110 |
Лугао-GW13-220 |
|
| Номинальное напряжение |
КВ |
110 | 220 | |
| Выдерживаемое напряжение нейтрали трансформатора |
Выдерживаемое напряжение молнии при полном и отключении (пиковое) |
КВ |
250 | 400 |
| Частота мощности 1 мин (эффективное значение) |
КВ |
95 | 200 | |
| Нейтральный разъединитель |
Номинальный ток |
A | 630 | 630 |
| Рабочий механизм |
|
CS14G (ручной) или CJ2 (электрический) |
||
| Разрядник из оксида цинка |
Номинальное напряжение (СКЗ) |
КВ |
72 | 144 |
| Постоянное рабочее напряжение |
КВ |
58 | 116 | |
| Опорное напряжение постоянного тока 1 мА |
КВ |
103 | 205 | |
| Остаточное напряжение импульсного тока молнии |
КВ |
186 | 320 | |
| Разрядный зазор |
Диапазон расстояний между электродами |
мм | 90-150 | 220-320 |
| Диапазон напряжения разряда промышленной частоты |
КВ |
50-83 | 100-166 | |
| Импульсное разрядное напряжение 1,2/50 мкс |
КВ |
120-190 | 250-320 | |
| Трансформатор тока |
Тип |
|
Полностью закрытый столб типа 10кВ залит эпоксидной смолой. |
|
| Коэффициент трансформации |
|
100/5200/5300/5.40015.50015.600/5 |
||

Наружный разъединитель 12 кВ
Разъединитель высокого напряжения 132 кВ для наружного применения
Gw4 Открытый изолирующий выключатель высокого напряжения
Gw1-12 Открытый изолирующий выключатель высокого напряжения
Gw1-24 Открытый изолирующий выключатель высокого напряжения
Gw5 Открытый изолирующий выключатель высокого напряжения